Prototype de mini-maison
- abegin
- 29 juin 2017
- 1 min de lecture

J'ai eu plusieurs messages me demandant de présenter l'intérieur de ce modèle publié sur Facebook il y a plusieurs semaines. Il fait partie d'une série créée pour une cliente, et aujourd'hui, il me fait plaisir de vous partager ce modèle.
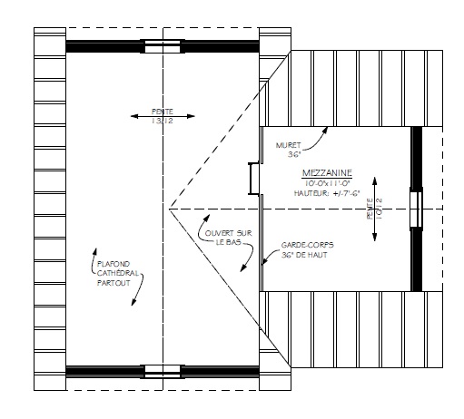
Si vous avez lu l'article de mardi dernier, ce prototype contient tous les éléments qui m'apparaissent important à avoir dans une mini. Un grand espace de vie à aire ouverte, une petite chambre fermée, une salle de bain maximisé avec laveuse-sécheuse superposée (pensez aussi à la salle mécanique) ainsi qu'un abri moustiquaire et une mezzanine polyvalente.
Vous avez un projet de mini qui s'en vient? Je vous invite à me contacter pour que nous regardions votre projet ensemble, et ainsi tirer profit de chaque pied carré!




















































Commentaires